Galzignano Terme: Villa contemporanea con ampio scoperto in altura
Dati
Caratteristiche
Descrizione
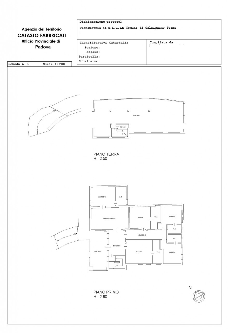
Galzignano Terme: Villa contemporanea situata in posizione aperta e panoramica; la proprietà di circa 17.000 mq è contornata da bosco e quindi garantisce massima privacy pur essendo comoda al centro del paese. L’abitazione è stata oggetto nel 2008 di ampliamento e radicale ristrutturazione, si sviluppa su due livelli. Il cuore abitativo è sviluppato al piano soprelevato e si compone di una terrazza coperta con vista sulla proprietà che da accesso all’ingresso che funge da disimpegno delle varie zone abitative che sono:
il soggiorno, la sala da pranzo con camino adiacente alla cucina che permette due uscite su lati opposti, il bagno ospiti e il locale lavanderia con uscita diretta all’esterno, l’ampio corridoio della zona notte che permette di raggiungere le tre camere matrimoniali, ciascuna con il proprio bagno finestrato personale con doccia.
Dall’ingresso si accede alla scala che ci conduce al piano terra della villa costituito da:
l’ ampio salone con due portoni ai lati opposti di uscita sul giardino, un bagno ed un ripostiglio.
La ristrutturazione ha permesso la sostituzione di tutti i serramenti con altri di nuova generazione dotati di zanzariere, il rifacimento di tutti i bagni e la costruzione di altri, il nuovo impianto di riscaldamento a pavimento suddiviso in varie zone, l’installazione di impianto termico-solare per la produzione di acqua calda con rifacimento di tutta la copertura, la sostituzione di tutto l’impianto elettrico.
E’ stato poi costruito un nuovo edificio su due livelli adibito a garage per due posti auto con portoni motorizzati e bagno con ripostiglio e magazzino al primo piano con accesso dall’esterno.
Il giardino che contorna la villa è stato rivisitato creando alcuni terrazzamenti con murature in pietra ed un suggestivo percorso perimetrale recintato, la proprietà prosegue oltre la rete fino alla sommità della collina piantumata con essenze tipiche della zona.
Una delle uscite del salone del piano terra sfocia su un prato con doccia esterna per momenti di relax o per prendere il sole, lo spazio permette di realizzare una piscina.
L’immobile viene venduto completamente arredato, è dotato di impianto di climatizzazione.
Galzignano Terme: Contemporary villa located in an open and panoramic position; the property of about 17,000 sqm is surrounded by woods, ensuring maximum privacy while being convenient to the town center. The house underwent an extension and complete renovation in 2008 and is spread over two levels. The main living area is on the raised floor and consists of a covered terrace overlooking the property, which leads to the entrance that serves as a hallway for the various living areas, which are: the living room, the dining room with a fireplace adjacent to the kitchen, which allows two exits on opposite sides, the guest bathroom, and the laundry room with direct access to the outside. The spacious corridor in the sleeping area leads to the three double bedrooms, each with its own private windowed bathroom with a shower.
From the entrance, you access the staircase that leads us to the ground floor of the villa, which consists of: a large living room with two doors on opposite sides opening onto the garden, a bathroom, and a storage room.
The renovation allowed for the replacement of all windows with new-generation ones equipped with mosquito nets, the refurbishment of all bathrooms and the construction of additional ones, a new underfloor heating system divided into various zones, the installation of a solar-thermal system for hot water production with a complete roof renovation, and the replacement of the entire electrical system.
A new two-level building was then constructed, intended as a garage for two cars with motorized doors, a bathroom with storage, and a warehouse on the first floor with external access.
The garden surrounding the villa has been redesigned, creating several terraces with stone walls and an attractive fenced perimeter path. The property extends beyond the fence up to the top of the hill, planted with typical local vegetation. One of the exits from the ground floor living room opens onto a lawn with an outdoor shower, ideal for moments of relaxation or sunbathing; the space also allows for the installation of a swimming pool. The property is sold fully furnished and is equipped with an air conditioning system.


